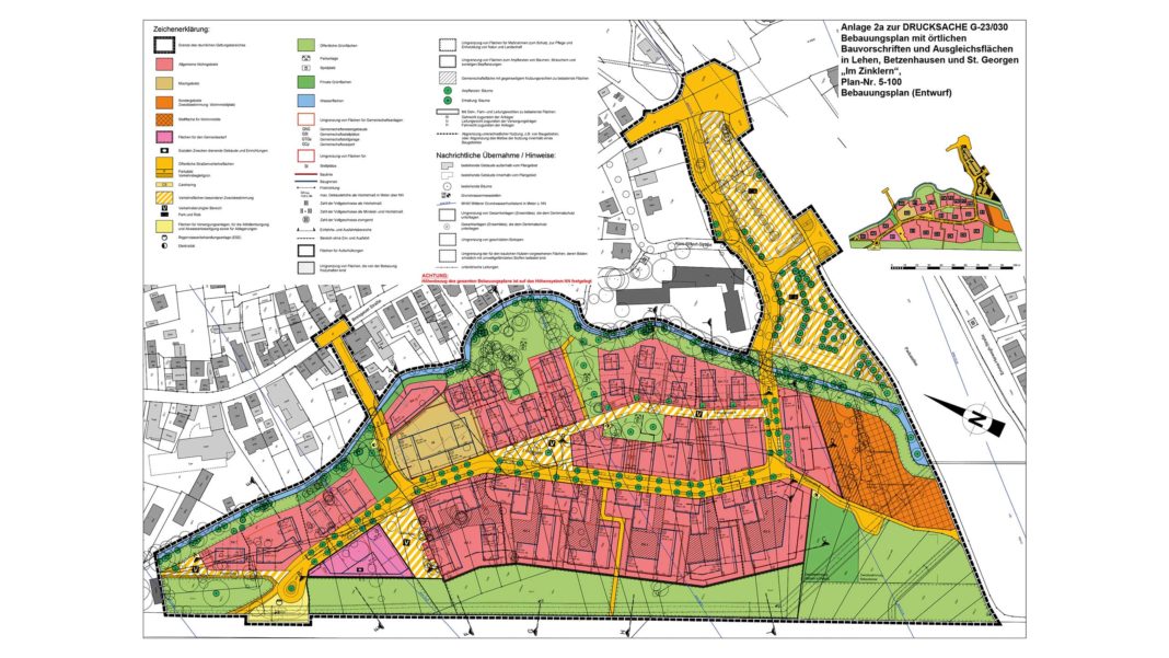
Der Bebauungsplan für das Baugebiet „Im Zinklern“ in Lehen ist beschlossene Sache. Auf 13,8 Hektar sollen hier 550 Wohnungen sowie 35 Reihenhäuser und Doppelhaushälften entstehen. Die Erschließung des Baugebiets soll im kommenden Jahr beginnen, der Baubeginn ist für 2026 vorgesehen.
Letzter formaler Schritt ist die Zustimmung des Regierungspräsidiums, danach die öffentliche Bekanntgabe im Amtsblatt, mit der im Sommer zu rechnen ist, und dann kann 2024 mit der Erschließung des Baugebiets begonnen werden. Über das Baugebiet wird bereits seit über 40 Jahren bei der Stadt gebrütet.
Von den geplanten Geschosswohnungen sind etwa 100 als geförderter Wohnraum geplant. Außerdem soll hier ein Supermarkt, eine Kita mit rund 120 Plätzen sowie eine Pflegeeinrichtung mit Café entstehen. Zudem soll die Johannes-Schwartz-Schule erweitert werden.
„Im Zinklern“ ist eine der letzten großen innerstädtischen Flächen, die im Flächennutzungsplan als Wohnbaufläche ausgewiesen und noch nicht überplant waren. Entlang der Dreisam soll ein Grünzug bleiben. Hier soll es auch eine Spielwiese sowie Flächen für gemeinsames Gärtnern geben sowie weitere Spielplätze am Mühlbach (der unter Denkmalschutz steht).

Mit dem Auto wird das Baugebiet über die Paduaallee/Breisgauer Straße zu erreichen sein. Von dort führt die Haupterschließungsstraße vorbei am bestehenden Park & Ride-Parkplatz und durch das ganze Baugebiet, bis zur Wendeschleife am Ende der Straße. Die vorhandene, zur Breisgauer Straße gehörende Stichstraße wird über den Mühlbach hinweg verlängert, bleibt jedoch dem Fuß- und Radverkehr vorbehalten. Baubeginn für das Gebiet „Im Zinklern“ soll dann 2026 sein.

